Задвижка клиновая стальная с выдвижным шпинделем DN50-1400 РN16
Диаметр условного проход:от 50 до 1400 мм
Условное давление:1.6 МПА
Рабочая среда:Вода, пар, нефтявые продукты
Температура рабочей среды:До 425 градусов (углеродистые стали)
До 525 градусов (нержавеющие стали)
Класс герметичности: А по Гост 9544-2015
S серия Облегченая серия
F серия Тяжелая серия,с полным проходом
Диаметр условного прохода:от 50 до 1400 мм
Условное давление:1.6 МПА
Рабочая среда:Вода, пар, нефтявые продукты
Температура рабочей среды:До 425 градусов (углеродистые стали)
До 525 градусов (нержавеющие стали)
Класс герметичности: А по Гост 9544-2015
S серия Облегченая серия
F серия Тяжелая серия,с полным проходом
| PN | УПРАВЛЕНИЕ | УГЛEPOДИCTAЯ СТАЛЬ(С) | ЛЕГИРОВАННАЯ СТАЛЬ(ЛС) | НЕРЖАВЕЮЩАЯ СТАЛЬ(НЖ) |
| PN16 | маховик | 30с41нж | 30лс41нж | 30нж41нж |
| редуктор | 30с541нж | 30лс541нж | 30нж541нж | |
| электропривод | 30с941нж | 30лс941нж | 30нж941нж |
![]() |
![]() |
![]() |
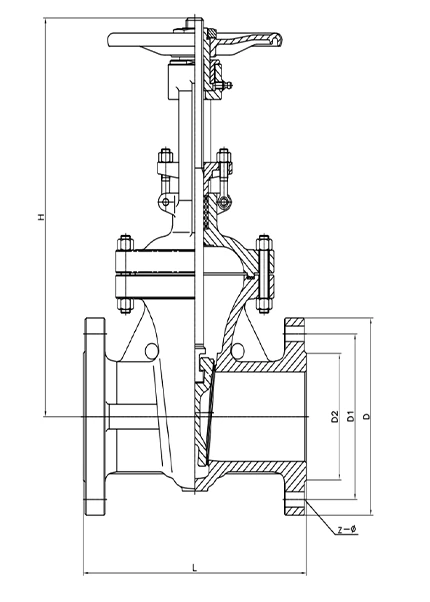
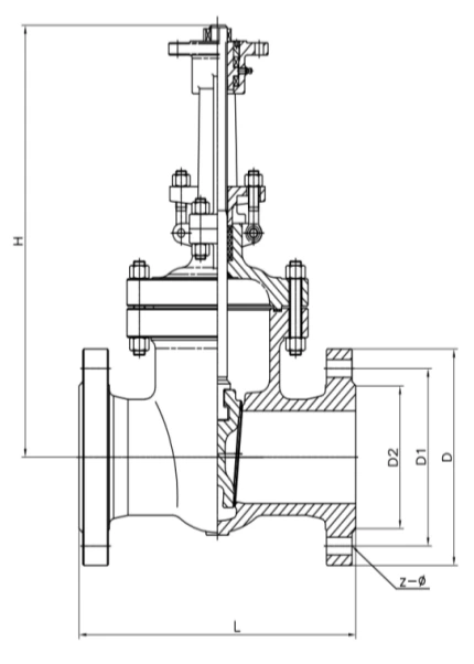
Основные технические характеристики
| PN | DN | L1 | L2 | L3 | D | D1 | D2 | z-ф | H | Масса,кг | Тип эл привод | Круятящий момент | Кол оборота шпинделя |
| 16 | 50 | 180 | 250 | 178 | 160 | 125 | 100 | 4-18 | 310 | 14 | Тип А | 52 | 14 |
| 16 | 80 | 210 | 280 | 203 | 195 | 160 | 135 | 4-18 | 435 | 28 | Тип А | 60 | 24 |
| 16 | 100 | 230 | 300 | 229 | 215 | 180 | 155 | 8-18 | 445 | 35 | Тип А | 86 | 23 |
| 16 | 125 | 255 | 325 | 254 | 245 | 210 | 185 | 8-18 | 570 | 40 | Тип А | 100 | 28 |
| 16 | 150 | 280 | 350 | 279 | 280 | 240 | 210 | 8-23 | 630 | 70 | Тип А | 120 | 30 |
| 16 | 200 | 330 | 400 | 292 | 335 | 295 | 265 | 12-23 | 735 | 100 | Тип Б | 210 | 38 |
| 16 | 250 | 450 | - | 330 | 405 | 355 | 320 | 12-25 | 969 | 180 | Тип Б | 280 | 43 |
| 16 | 300 | 500 | - | 356 | 460 | 410 | 375 | 12-25 | 976 | 280 | Тип Б | 300 | 52 |
| 16 | 350 | 550 | - | 381 | 520 | 470 | 370 | 12-26 | 1120 | 360 | Тип В | 600 | 58 |
| 16 | 400 | 600 | - | 406 | 580 | 525 | 485 | 16-30 | 1452 | 480 | Тип В | 900 | 66 |
| 16 | 500 | 700 | - | 457 | 705 | 650 | 608 | 20-34 | 1880 | 850 | Тип В | 1200 | 62.5 |
| 16 | 600 | 800 | - | 508 | 840 | 770 | 718 | 20-36 | 1974 | 1300 | Тип Г | 1800 | 75 |
| 16 | 700 | 900 | - | 612 | 910 | 840 | 800 | 24-39 | 2083 | 1500 | Тип Г | 2500 | 87.5 |
| 16 | 800 | 1000 | - | 660 | 1020 | 950 | 898 | 24-41 | 2400 | 2200 | Тип Г | 2800 | 80 |
| 16 | 1000 | 1200 | - | 813 | 1255 | 1170 | 1110 | 28-48 | 3245 | 3800 | Тип Д | 3500 | 83 |
| 16 | 1200 | 1400 | - | - | 1485 | 1390 | 1330 | 32-52 | 3800 | 5000 | Тип Д | 8000 | 100 |
| 16 | 1400 | 1600 | - | - | 1685 | 1590 | 1550 | 32-52 | 4500 | 6000 | Тип Д | 10000 | 116 |

Информационые обмены
Мы активно участвуем в различных отраслевых выставках, встречах по обмену и т. Д., Глубоко понимаем динамику отраслевых продуктов, онлайн-общение и проверки на местах, а также активно работаем над оптимизацией продуктов и техническими обновлениями, чтобы лучше соответствовать различным потребностям клиенты.
Упаковка, доставка и оплата

Часто задаваемые вопросы
Q1:Какой срок производства ?
A.Это зависит от объема заказа.Обычно на ходовые позиции нужно 30 дней , если в складу есть в
наличии , сможем отправлять в течении 5-7 дней .
Q2: вы являетесь торговая компания или производитель?
A: Мы являемся производителем по запорной арматуре.
Q3: Можете ли вы производить по нашим чертежам?
A: Да, пожалуйста, отправьте нам свой собственный черновик. OEM-товары приветствуются.
Q4: У вас есть агент или представитель за границей?
A: У нас нет агента за границей.
Q5: Сможем ли мы отливать логотип на изделиях ?
A: Да, OEM доступен с разрешения наших клиентов.
Q6:какая у вас условия оплаты?
A: T / T или L / C, если вам нужен другой способ, пожалуйста, свяжитесь с нами.
Q7: каков ваш основной рынок?
A: Восточная Европа, Юго-Восточная Азия, Африка, Океания, Средний Восток, Восточная Азия, Западная Европа, Северная Америка, Южная Америка и так далее.
Q8: Что я могу получить от сотрудничества?
1. Уникальные клапаны с индивидуальным обслуживанием.
2. Своевременное изготовление и поставка, время - деньги.
3. Служба защиты рынка, долгосрочная бизнес-стратегия.
Если у вас есть какие-либо вопросы или вопросы, пожалуйста, свяжитесь с нами.
Получить предложение
Если вас интересуют наши продукты и вы хотите узнать больше деталей, пожалуйста, оставьте сообщение здесь, мы ответим вам как можно скорее.





