Кран шаровой фланцевые с шаром на опорах
Диаметр условного проход:от 80 до 800 мм
Условное давление:1.6 МПА-160МПА
Температура рабочей среды: до 425 градусов (углеродистые стали)
До 525 градусов (нержавеющие стали)
Рабочая среда:вода, пар нефтявые продукты
Класс герметичности:A по Гост 9544-2015
Диаметр условного прохода:от 80 до 800 мм
Условное давление:1.6 МПА-160МПА
Температура рабочей среды: до 425 градусов (углеродистые стали)
До 525 градусов (нержавеющие стали)
Рабочая среда:вода, пар нефтявые продукты
Класс герметичности:A по Гост 9544-2015
Материал корпуса:углepoдиctaя сталь(с), легированная сталь(лс),нержавеющая сталь (нж)
Тип управления:ручное(маховик),редуктор(5),электропривод(9)
Материал Уплотнение:PTFE,меттал по метталу
Тип присоединение:Фланцевое, под приварку
Материалы основных деталей
Корпус:Сталь 20 , А105, нержавеющие стали
Крашка:Сталь 20 , А105, нержавеющие стали
Шар:Сталь 20 , А105, нержавеющие стали,титан,
Шток:нержавеющие стали
Седло:PTFE,RPTFE
Пружина:INCONELX-750/17-7PH
Набивка сальника:Графит, PTFE

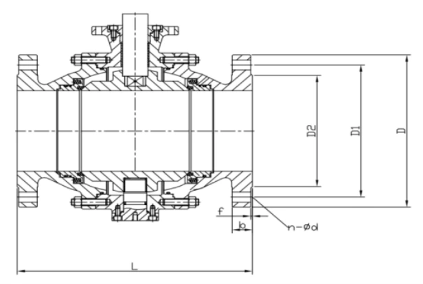
Основные технические характеристики
| PN16 | |||||||||||||||||||||
| DN | L | D | D1 | D2 | b | f | n-φd | ||||||||||||||
| 80 | 203 | 200 | 160 | 138 | 20 | 2 | 8-φ18 | ||||||||||||||
| 100 | 229 | 220 | 180 | 158 | 20 | 2 | 8-Φ18 | ||||||||||||||
| 125 | 356 | 250 | 210 | 188 | 22 | 2 | 8-Φ18 | ||||||||||||||
| 150 | 394 | 285 | 240 | 212 | 22 | 2 | 8-φ22 | ||||||||||||||
| 200 | 457 | 340 | 295 | 268 | 24 | 2 | 12-φ22 | ||||||||||||||
| 250 | 533 | 405 | 355 | 320 | 26 | 2 | 12-φ26 | ||||||||||||||
| 300 | 610 | 460 | 410 | 378 | 28 | 2 | 12-φ26 | ||||||||||||||
| 350 | 686 | 520 | 470 | 428 | 30 | 2 | 16-φ26 | ||||||||||||||
| 400 | 762 | 580 | 525 | 490 | 32 | 2 | 16-Φ30 | ||||||||||||||
| 450 | 864 | 640 | 585 | 550 | 40 | 2 | 20-φ30 | ||||||||||||||
| 500 | 914 | 715 | 650 | 610 | 44 | 2 | 20-φ33 | ||||||||||||||
| 600 | 1067 | 840 | 770 | 725 | 54 | 2 | 20-φ36 | ||||||||||||||
| 700 | 1245 | 910 | 840 | 795 | 42 | 2 | 24-Φ36 | ||||||||||||||
| 800 | 1372 | 1025 | 950 | 900 | 42 | 2 | 24-Φ39 | ||||||||||||||
| PN40 | |||||||||||||||||||||
| DN | L | D | D1 | D2 | b | f | n-φd | ||||||||||||||
| 80 | 283 | 200 | 160 | 138 | 24 | 2 | 8-φ18 | ||||||||||||||
| 100 | 305 | 235 | 190 | 162 | 24 | 2 | 8-φ22 | ||||||||||||||
| 125 | 381 | 270 | 220 | 188 | 26 | 2 | 8-φ26 | ||||||||||||||
| 150 | 403 | 300 | 250 | 218 | 28 | 2 | 8-Φ26 | ||||||||||||||
| 200 | 502 | 375 | 320 | 285 | 34 | 2 | 12-Φ26 | ||||||||||||||
| 250 | 568 | 450 | 385 | 345 | 38 | 2 | 12-φ33 | ||||||||||||||
| 300 | 648 | 515 | 450 | 410 | 42 | 2 | 16-Φ33 | ||||||||||||||
| 350 | 762 | 580 | 510 | 465 | 46 | 2 | 16-Φ36 | ||||||||||||||
| 400 | 838 | 660 | 585 | 535 | 50 | 2 | 16-Φ39 | ||||||||||||||
| 450 | 914 | 685 | 610 | 560 | 57 | 2 | 20-φ39 | ||||||||||||||
| 500 | 991 | 755 | 670 | 615 | 57 | 2 | 20-Φ42 | ||||||||||||||
| 600 | 1143 | 890 | 795 | 735 | 72 | 2 | 20-Φ48 | ||||||||||||||
| PN63 | |||||||||||||||||||||
| DN | L | D | D1 | D2 | b | f | n-φd | ||||||||||||||
| 80 | 356 | 215 | 170 | 138 | 28 | 2 | 8-φ22 | ||||||||||||||
| 100 | 406 | 250 | 200 | 162 | 30 | 2 | 8-φ26 | ||||||||||||||
| 125 | 432 | 295 | 240 | 188 | 34 | 2 | 8-Φ30 | ||||||||||||||
| 150 | 495 | 345 | 280 | 218 | 36 | 2 | 8-Φ33 | ||||||||||||||
| 200 | 597 | 415 | 345 | 285 | 42 | 2 | 12-Φ36 | ||||||||||||||
| 250 | 673 | 470 | 400 | 345 | 46 | 2 | 12-Φ36 | ||||||||||||||
| 300 | 762 | 530 | 460 | 410 | 52 | 2 | 16-Φ36 | ||||||||||||||
| 350 | 826 | 600 | 525 | 465 | 56 | 2 | 16-φ39 | ||||||||||||||
| 400 | 902 | 670 | 585 | 535 | 60 | 2 | 16-Φ42 | ||||||||||||||
Информационые обмены

Мы активно участвуем в различных отраслевых выставках, встречах по обмену и т. Д., Глубоко понимаем динамику отраслевых продуктов, онлайн-общение и проверки на местах, а также активно работаем над оптимизацией продуктов и техническими обновлениями, чтобы лучше соответствовать различным потребностям клиенты.Упаковка, доставка и оплата

Часто задаваемые вопросы
Q1:Какой срок производства ?
A.Это зависит от объема заказа.Обычно на ходовые позиции нужно 30 дней , если в складу есть в
наличии , сможем отправлять в течении 5-7 дней .
Q2: вы являетесь торговая компания или производитель?
A: Мы являемся производителем по запорной арматуре.
Q3: Можете ли вы производить по нашим чертежам?
A: Да, пожалуйста, отправьте нам свой собственный черновик. OEM-товары приветствуются.
Q4: У вас есть агент или представитель за границей?
A: У нас нет агента за границей.
Q5: Сможем ли мы отливать логотип на изделиях ?
A: Да, OEM доступен с разрешения наших клиентов.
Q6:какая у вас условия оплаты?
A: T / T или L / C, если вам нужен другой способ, пожалуйста, свяжитесь с нами.
Q7: каков ваш основной рынок?
A: Восточная Европа, Юго-Восточная Азия, Африка, Океания, Средний Восток, Восточная Азия, Западная Европа, Северная Америка, Южная Америка и так далее.
Q8: Что я могу получить от сотрудничества?
1. Уникальные клапаны с индивидуальным обслуживанием.
2. Своевременное изготовление и поставка, время - деньги.
3. Служба защиты рынка, долгосрочная бизнес-стратегия.
Если у вас есть какие-либо вопросы или вопросы, пожалуйста, свяжитесь с нами.
Получить предложение
Если вас интересуют наши продукты и вы хотите узнать больше деталей, пожалуйста, оставьте сообщение здесь, мы ответим вам как можно скорее.



