Кран шаровой фланцевый 2-х составной с плавающим шаром
Диаметр условного проход:от 15 до 300 мм
Условное давление:1.6 МПА
Температура рабочей среды: до 425 градусов (углеродистые стали)
До 525 градусов (нержавеющие стали)
Рабочая среда:вода, пар нефтявые продукты
Класс герметичности:А по Гост 9544-2015
Диаметр условного прохода:от 15 до 300 мм
Условное давление:1.6 МПА
Температура рабочей среды: до 425 градусов (углеродистые стали)
До 525 градусов (нержавеющие стали)
Рабочая среда:вода, пар нефтявые продукты
Класс герметичности:А по Гост 9544-2015
Материал корпуса:углepoдиctaя сталь(с), легированная сталь(лс),нержавеющая сталь (нж)
Тип управления:ручное(маховик),редуктор(5),электропривод(9)
Материал Уплотнение:PTFE,меттал по метталу
Тип присоединение:Фланцевое, под приварку
Материалы основных деталей
Корпус:Сталь 20 , А105, нержавеющие стали
Крашка:Сталь 20 , А105, нержавеющие стали
Шар:нержавеющие стали
Шток:нержавеющие стали
Седло:PTFE,RPTFE
Набивка сальника:Графит, PTFE
![]() |
![]() |
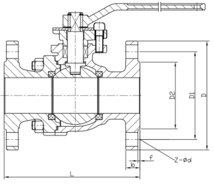
Основные технические характеристики
| DN | L | D | D1 | D2 | b | f | Z-φd | TXT |
| 15 | 130 | 95 | 65 | 45 | 14 | 2 | 4-Φ14 | 9X9 |
| 20 | 130 | 105 | 75 | 55 | 14 | 2 | 4-Φ14 | 9X9 |
| 25 | 150 | 115 | 85 | 65 | 14 | 2 | 4-Φ14 | 11X11 |
| 32 | 165 | 135 | 100 | 78 | 16 | 2 | 4Φ18 | 11X11 |
| 40 | 180 | 145 | 110 | 85 | 16 | 2 | 4-Φ18 | 14X14 |
| 50 | 200 | 160 | 125 | 100 | 16 | 2 | 4-Φ18 | 14X14 |
| 65 | 220 | 180 | 145 | 120 | 18 | 2 | 4-Φ18 | 14X14 |
| 80 | 250 | 195 | 160 | 135 | 20 | 2 | 8-Φ18 | 17X17 |
| 100 | 280 | 215 | 180 | 155 | 20 | 2 | 8-Φ18 | 22X22 |
| 125 | 320 | 245 | 210 | 185 | 22 | 2 | 8-Φ18 | |
| 150 | 360 | 280 | 240 | 212 | 24 | 2 | 8-Φ23 | |
| 200 | 400 | 335 | 295 | 268 | 26 | 2 | 12-Φ23 |

Информационые обмены

Мы активно участвуем в различных отраслевых выставках, встречах по обмену и т. Д., Глубоко понимаем динамику отраслевых продуктов, онлайн-общение и проверки на местах, а также активно работаем над оптимизацией продуктов и техническими обновлениями, чтобы лучше соответствовать различным потребностям клиенты.Упаковка, доставка и оплата

Часто задаваемые вопросы
Q1: Какой срок производства ?
A.Это зависит от объема заказа.Обычно на ходовые позиции нужно 30 дней , если в складу есть в
наличии , сможем отправлять в течении 5-7 дней .
Q2: вы являетесь торговая компания или производитель?
A: Мы являемся производителем по запорной арматуре.
Q3: Можете ли вы производить по нашим чертежам?
A: Да, пожалуйста, отправьте нам свой собственный черновик. OEM-товары приветствуются.
Q4: У вас есть агент или представитель за границей?
A: У нас нет агента за границей.
Q5: Сможем ли мы отливать логотип на изделиях ?
A: Да, OEM доступен с разрешения наших клиентов.
Q6: какая у вас условия оплаты?
A: T / T или L / C, если вам нужен другой способ, пожалуйста, свяжитесь с нами.
Q7: каков ваш основной рынок?
A: Восточная Европа, Юго-Восточная Азия, Африка, Океания, Средний Восток, Восточная Азия, Западная Европа, Северная Америка, Южная Америка и так далее.
Q8: Что я могу получить от сотрудничества?
1. Уникальные клапаны с индивидуальным обслуживанием.
2. Своевременное изготовление и поставка, время - деньги.
3. Служба защиты рынка, долгосрочная бизнес-стратегия.
Если у вас есть какие-либо вопросы или вопросы, пожалуйста, свяжитесь с нами.
Получить предложение
Если вас интересуют наши продукты и вы хотите узнать больше деталей, пожалуйста, оставьте сообщение здесь, мы ответим вам как можно скорее.





